De vanzare apartament + terasa de 67 mp in bloc nou in cartier Marasti

197.900 €

Detalii

  • ID Anunț: # 148088

  • Adăugat la: 15:37, 04.02.2026

  • Anunț publicat de: Firmă

  • Suprafața utilă 64

  • An construcție 2025

  • Etaj 6

  • Compartimentare Semidecomandat

  • Vizualizări: 159

Descriere

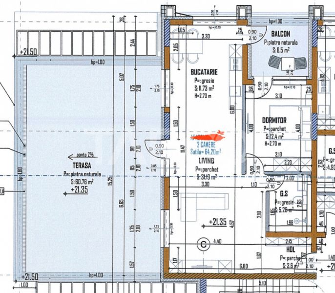
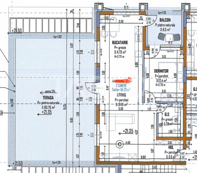
Apartament 2 camere de vanzare, semidecomandat, 64 mpu + terasa, Marasti, Cluj-Napoca.     
TABOO Imobiliare propune un apartament de vanzare cu 2 camere, semidecomandat, situat in localitatea Cluj-Napoca, zona Marasti, aflat la etajul 6 intr -un imobil tip bloc cu regim de inaltime pe Parter + 6 Etaje; anul constructiei 2025, structura caramida. Suprafata utila de 64 mp + terasa de 67 mp

Apartamentul este structurat astfel:
• Hol;
• Bucatarie;
• Baie;
• Living;
• Dormitor;
- Terasa; 

Finisajele interioare sunt urmatoarele:
• Usa intrare: metal;                        
• Tamplarie ferestre: pvc, termopan;          
• Pereti: vopsea lavabila;
• Podele: nefinisat.

Utilitati si dotari:                                     
• Utilitati: curent electric, apa, canalizare, gaz;
• Izolatii: exterior, bloc izolat termic;
• Contorizare: apometre, contor gaz, contor curent electric;
• Caracteristici bloc: interfon, lift.

Apartamentul se vinde la stadiul de semifinisat.

Incalzirea se realizeaza prin centrala imobil, incalzire pardoseala.

Se accepta ca si modalitate de plata surse proprii sau credit bancar.

Pret: 197.900€ + TVA
Cod ofertă / ID: P24995
Sună-ne acum și află detalii despre această proprietate de vanzare din Cluj-Napoca, dar și despre alte proprietăți potrivite pentru tine.

197.900 €

TABOO.ro

Pe site din 2019

SIBIU, județ SIBIU
Contact:
Raportează

Contactează vânzătorul

07xx xxx xxx arată telefon
Trimite mesaj
Ați vizionat anunțul: De vanzare apartament + terasa de 67 mp in bloc nou in cartier Marasti
Acest site folosește cookies. Continuare navigării implică acceptarea lor.